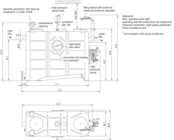
Grease separator LipuJet-S-OM extension stage 2
Product benefits
- Odour-free emptying, cleaning and filling
- Hydromechanical high-pressure cleaning – only a cold-water connection required
- Can be equipped with an disposal pump
- Minimises disposal and maintenance costs thanks to economic step increases in nominal size
- Small delivery dimensions
- Low weight
Product information
- Grease separator plant as per DIN EN 1825 and DIN 4040-100
- For indoors installation – frost free
- With integrated sludge trap
- Operating side: right/left
- Draining connection, fire hose quick coupling B 2½"
- Suction and emptying sump with drain plug socket 1"
- Inspection window with wiper
- Manual operation of the high pressure internal cleaning with pump
- Nominal pressure: 175 bar
- Capacity: 11,6 l/min
- Chopping, mixing, rinsing in one process
- Odour-proof maintenance opening
- Diameter: 300 mm for NS 1 – 4
- Diameter: 500 mm for NS 5.5 – 10
- Filling device with ball valve (connection ¾") for manual refilling
- Electrical connector: 400 V/50 Hz/4,2 kW
Features of base version:
- Emptying and cleaning via maintenance opening
- Odour build-up during emptying and cleaning

Features of upgrade level 1:
- Connection for direct suction
- Odour build-up only during cleaning

Features of upgrade level 2:
- Connection for direct suction
- High pressure cleaning operated manually
- No odour build-up

Features of upgrade level 3:
- Connection for direct suction
- Completely automatic programme
- Optionally with drainage pump and remote control
- No odour build-up
LipuJet-S-OAP (with disposal pump)

Grease layer thickness measuring device
Suitable for
- LipuJet-P
- Oval NS 1 – 10
- Round NS 2 – 22,5
- LipuJet-S
- Oval NS 1 – 10
- Round NS 2 – 20
- LipuSmart-P
- Oval NS 1 – 10
Description
- For electronic measurement of layer of grease
- Suitable for liquid and/or congealing grease
- Measuring device with plug and used connecting cable, length: 3 m
- With two voltage-free changeover contacts to display full warning (80%) and advance warning of fill level (50%)
- With visual display of fill level
- With heated probe rod to increase reliability of operation
- Operating voltage: 230VAC/5 VA
- Max consumption approx. 12W
- Weight: 2.8 kg
- Rabattgruppe: 11
ACO Ozone Generator
Suitable for
- Grease separators, indoors
- Grease separators, outdoors
- Lifting stations
- Pumping stations
Description
- ACO Ozone minimizes odors that can arise from grease seperators, lifting plants and pumping stations
- Material: acid-resistant stainless steel
Consists:
- ACO Ozone - ozone generator
- Size (L x W x H): 270 x 100 x 85 mm
- Nominal voltage 230 V / 50 Hz
- Degree of protection IP20
- ACO Ozone pump - feed pump
- Size (L x W x H): 160 x 90 x 90 mm
- Integrated filter
- Nominal voltage 230 V / 50 Hz
- Degree of protection IP54
- ACO Ozone bracket - wall bracket
- Size (L x W x H): 295 x 110 x 90 mm
- Hoses
- Rabattgruppe: 11
Message system with GSM module
Suitable for
- All grease separators
- Grease layer thickness measuring device
- Pre-tank plants
- Technical processing systems
- Quatrix-K backflow preventer type 3F
- Sinkamat-K (underfloor) duo
- Muli lifting units
- Pumping stations
- Installation sets
Description
- Parameter via app (Android & iOs)
- Mains-independent alarm via 12V lead-gel battery
- Optical and acoustic alarm message
- Freely configurable inputs
- 6 digital inputs with LED status display
- 1 analogue
- 1 alarm output 12 V
- Alarm forwarding via SMS to mobile phones
- For mounting outside the hazardous area
- Housing: 192 x 150(with cable gland) x 100 mm (WxHxD)
- Protective doctor: IP54
- Operating voltage: 230 V/AC 50/60 Hz
- Weight: 2 kg
- Rabattgruppe: 12
Connection cable antenna GSM
Heating rod
Connection box
In-wall frame
Storz coupling for swinging gas lines
Connection box
Suitable for
- Grease separators
- LipuMax-P-D/DM/DA
- LipuJet-P-OD/RD/SD/OM/OMP/RM/RMP
- LipuJet-S-OD/RD/SD/OM/OMP/RM/RMP
- Stach seperators FapuMax-P-DA
- Oil separators Coalisator-P
- LipuLift-P-D/-DA/-DAP
Description
- For evacuation connection DN 80
- Made from stainless steel, material grade 304
- "On wall" version
- Door stop
- Choice of left or right
- Lockable door
- Dimensions (width x height x depth): 370 x 330 x 250 mm
- Weight: 10.4 kg
- Rabattgruppe: 11
In-wall frame
Connection box
Suitable for
- Grease separator
- Starch separators
- LipuLift-P-D/-DA/-DAP
Description
- For disposal connection, pendulum gas line (if necessary) and remote control
- From stainless steel, material grade 304
- "Surface mounted” version
- Glass beaded front
- Lockable door, left limit stop
- Dimensions W x H x D: 300 x 725 x 160 mm
- Weight: 10 kg
- Rabattgruppe: 11
In-wall frame
Sampling pot DN 100
Suitable for
- Grease separator LipuJet-S/Lipator-S
- NS 1 – 4
- Starch separator FapuJet-S
- NS 0.5 – 1
- Light oil separator Coalisator-R/-RD
- NS 3
Description
- Stainless steel, material grade 316
- Round shape
- Gradient drop: 70 mm
- For installation in DN 100 horizontal pipes coming from grease separator
- With EC connector and claw
- Connections tested to DIN EN 877
- Weight: 9.9 kg
- Rabattgruppe: 11
Sampling pot DN 150
Suitable for
- Grease separator LipuJet-S/Lipator-S
- NS 5.5 – 10
- Starch separator FapuJet-S
- NS 2
- Light oil separator Coalisator-R/-RD
- NS 6 – 10
Description
- Stainless steel, material grade 316
- Round shape
- Gradient drop: 70 mm
- For installation in DN 150 horizontal pipes coming from grease separator
- With EC connector and claw
- Connections tested to DIN EN 877
- Weight: 12.2 kg
- Rabattgruppe: 11
Sampling pot DN 200
Suitable for
- Grease separator LipuJet-S/Lipator-S
- NS 15 – 20
- Light oil separator Coalisator-E
- NS 20
Description
- Stainless steel, material grade 316
- Round shape
- Gradient drop: 70 mm
- For installation in DN 200 horizontal pipes coming from grease separator
- With EC connector and claw
- Connections tested to DIN EN 877
- Weight: 13.1 kg
- Rabattgruppe: 11
Sampling pot DN 100
Suitable for
- Grease separator LipuJet-S/Lipator-S
- NS 1 – 4
- Starch separator FapuJet-S
- NS 0.5 – 1
- Light oil separator Coalisator-R/-RD
- NS 3
Description
- Stainless steel, material grade 316
- Round shape
- For installation in DN 100 vertical pipes coming from grease separator
- With EC connector and claw
- Connections tested to DIN EN 877
- Weight: 9.5 kg
- Rabattgruppe: 11
Sampling pot DN 150
Suitable for
- Grease separator LipuJet-S/Lipator-S
- NS 5.5 – 10
- Starch separator FapuJet-S
- NS 2
- Light oil separator Coalisator-R/-RD
- NS 6 – 10
Description
- Stainless steel, material grade 316
- Round shape
- For installation in DN 150 vertical pipes coming from grease separator
- With EC connector and claw
- Connections tested to DIN EN 877
- Weight: 11.3 kg
- Rabattgruppe: 11
Sampling pot DN 200
Suitable for
- Grease separator LipuJet-S/Lipator-S
- NS 15 – 20
- Light oil separator Coalisator-E
- NS 20
Description
- Made from stainless steel, material grade 304
- Round shape
- For installation in DN 200 vertical pipes coming from grease separator
- With EC connector and claw
- Connections tested to DIN EN 877
- Weight: 11 kg
- Rabattgruppe: 11
Coarse trap DN 100
Suitable for
- Grease separator LipuJet-S/Lipator-S
- NS 1 – 4
- Starch separator FapuJet-S
- NS 0.5 – 1
Description
- Stainless steel, material grade 316
- Round shape
- Gradient drop: 70 mm
- For installation in DN 100 vertical pipes going to grease separator
- With EC connector and claw
- Connections tested to DIN EN 877
- Weight: 11 kg
- Rabattgruppe: 11
Coarse trap DN 150
Suitable for
- Grease separator LipuJet-S/Lipator-S
- NS 5.5 – 10
- Starch separator FapuJet-S
- NS 2
Description
- Stainless steel, material grade 316
- Round shape
- Gradient drop: 70 mm
- For installation in DN 150 vertical pipes going to grease separator
- With EC connector and claw
- Connections tested to DIN EN 877
- Weight: 13.4 kg
- Rabattgruppe: 11
Coarse trap DN 200
Stop valve
Suitable for
- Grease separators for free-standing installation
- Starch separator for free-standing installation
Description
- Made of cast iron
- Penstock plate, spindle made from stainless steel, material grade 304
- DN 100
- Length (L): 50 mm
- Spindle travel (H1 – H2): 365 – 465 mm
- Manual wheel diameter: 200 mm
- Weight: 15 kg
- Rabattgruppe: 11
Stop valve
Suitable for
- Grease separators for free-standing installation
- Starch separator for free-standing installation
Description
- Made of cast iron
- Penstock plate, spindle made from stainless steel, material grade 304
- DN 150
- Length (L): 60 mm
- Spindle travel (H1 – H2): 478 – 639 mm
- Manual wheel diameter: 200 mm
- Weight: 29.4 kg
- Rabattgruppe: 11
Flange connection part
Flange connection part
Operating Logbook
Suitable for
- Grease separator
- For underground installation
- For free-standing installation
Description
- Contents: Check-list and standard forms to document in-house monitoring, maintenance and disposal relating to the plant as required by DIN 4040-100
- Format: A4 with double filing rings
- Size: 60 pages
- Laid out to cover 5 years
- Weight: 0.3 kg
- Rabattgruppe: 11
Features of base version:
- Emptying and cleaning via maintenance opening
- Odour build-up during emptying and cleaning

Features of upgrade level 1:
- Connection for direct suction
- Odour build-up only during cleaning

Features of upgrade level 2:
- Connection for direct suction
- High pressure cleaning operated manually
- No odour build-up

Features of upgrade level 3:
- Connection for direct suction
- Completely automatic programme
- Optionally with drainage pump and remote control
- No odour build-up
LipuJet-S-OAP (with disposal pump)

Grease layer thickness measuring device
Suitable for
- LipuJet-P
- Oval NS 1 – 10
- Round NS 2 – 22,5
- LipuJet-S
- Oval NS 1 – 10
- Round NS 2 – 20
- LipuSmart-P
- Oval NS 1 – 10
Description
- For electronic measurement of layer of grease
- Suitable for liquid and/or congealing grease
- Measuring device with plug and used connecting cable, length: 3 m
- With two voltage-free changeover contacts to display full warning (80%) and advance warning of fill level (50%)
- With visual display of fill level
- With heated probe rod to increase reliability of operation
- Operating voltage: 230VAC/5 VA
- Max consumption approx. 12W
- Weight: 2.8 kg
- Rabattgruppe: 11
ACO Ozone Generator
Suitable for
- Grease separators, indoors
- Grease separators, outdoors
- Lifting stations
- Pumping stations
Description
- ACO Ozone minimizes odors that can arise from grease seperators, lifting plants and pumping stations
- Material: acid-resistant stainless steel
Consists:
- ACO Ozone - ozone generator
- Size (L x W x H): 270 x 100 x 85 mm
- Nominal voltage 230 V / 50 Hz
- Degree of protection IP20
- ACO Ozone pump - feed pump
- Size (L x W x H): 160 x 90 x 90 mm
- Integrated filter
- Nominal voltage 230 V / 50 Hz
- Degree of protection IP54
- ACO Ozone bracket - wall bracket
- Size (L x W x H): 295 x 110 x 90 mm
- Hoses
- Rabattgruppe: 11
Message system with GSM module
Suitable for
- All grease separators
- Grease layer thickness measuring device
- Pre-tank plants
- Technical processing systems
- Quatrix-K backflow preventer type 3F
- Sinkamat-K (underfloor) duo
- Muli lifting units
- Pumping stations
- Installation sets
Description
- Parameter via app (Android & iOs)
- Mains-independent alarm via 12V lead-gel battery
- Optical and acoustic alarm message
- Freely configurable inputs
- 6 digital inputs with LED status display
- 1 analogue
- 1 alarm output 12 V
- Alarm forwarding via SMS to mobile phones
- For mounting outside the hazardous area
- Housing: 192 x 150(with cable gland) x 100 mm (WxHxD)
- Protective doctor: IP54
- Operating voltage: 230 V/AC 50/60 Hz
- Weight: 2 kg
- Rabattgruppe: 12
Connection cable antenna GSM
Heating rod
Connection box
In-wall frame
Storz coupling for swinging gas lines
Connection box
Suitable for
- Grease separators
- LipuMax-P-D/DM/DA
- LipuJet-P-OD/RD/SD/OM/OMP/RM/RMP
- LipuJet-S-OD/RD/SD/OM/OMP/RM/RMP
- Stach seperators FapuMax-P-DA
- Oil separators Coalisator-P
- LipuLift-P-D/-DA/-DAP
Description
- For evacuation connection DN 80
- Made from stainless steel, material grade 304
- "On wall" version
- Door stop
- Choice of left or right
- Lockable door
- Dimensions (width x height x depth): 370 x 330 x 250 mm
- Weight: 10.4 kg
- Rabattgruppe: 11
In-wall frame
Connection box
Suitable for
- Grease separator
- Starch separators
- LipuLift-P-D/-DA/-DAP
Description
- For disposal connection, pendulum gas line (if necessary) and remote control
- From stainless steel, material grade 304
- "Surface mounted” version
- Glass beaded front
- Lockable door, left limit stop
- Dimensions W x H x D: 300 x 725 x 160 mm
- Weight: 10 kg
- Rabattgruppe: 11
In-wall frame
Sampling pot DN 100
Suitable for
- Grease separator LipuJet-S/Lipator-S
- NS 1 – 4
- Starch separator FapuJet-S
- NS 0.5 – 1
- Light oil separator Coalisator-R/-RD
- NS 3
Description
- Stainless steel, material grade 316
- Round shape
- Gradient drop: 70 mm
- For installation in DN 100 horizontal pipes coming from grease separator
- With EC connector and claw
- Connections tested to DIN EN 877
- Weight: 9.9 kg
- Rabattgruppe: 11
Sampling pot DN 150
Suitable for
- Grease separator LipuJet-S/Lipator-S
- NS 5.5 – 10
- Starch separator FapuJet-S
- NS 2
- Light oil separator Coalisator-R/-RD
- NS 6 – 10
Description
- Stainless steel, material grade 316
- Round shape
- Gradient drop: 70 mm
- For installation in DN 150 horizontal pipes coming from grease separator
- With EC connector and claw
- Connections tested to DIN EN 877
- Weight: 12.2 kg
- Rabattgruppe: 11
Sampling pot DN 200
Suitable for
- Grease separator LipuJet-S/Lipator-S
- NS 15 – 20
- Light oil separator Coalisator-E
- NS 20
Description
- Stainless steel, material grade 316
- Round shape
- Gradient drop: 70 mm
- For installation in DN 200 horizontal pipes coming from grease separator
- With EC connector and claw
- Connections tested to DIN EN 877
- Weight: 13.1 kg
- Rabattgruppe: 11
Sampling pot DN 100
Suitable for
- Grease separator LipuJet-S/Lipator-S
- NS 1 – 4
- Starch separator FapuJet-S
- NS 0.5 – 1
- Light oil separator Coalisator-R/-RD
- NS 3
Description
- Stainless steel, material grade 316
- Round shape
- For installation in DN 100 vertical pipes coming from grease separator
- With EC connector and claw
- Connections tested to DIN EN 877
- Weight: 9.5 kg
- Rabattgruppe: 11
Sampling pot DN 150
Suitable for
- Grease separator LipuJet-S/Lipator-S
- NS 5.5 – 10
- Starch separator FapuJet-S
- NS 2
- Light oil separator Coalisator-R/-RD
- NS 6 – 10
Description
- Stainless steel, material grade 316
- Round shape
- For installation in DN 150 vertical pipes coming from grease separator
- With EC connector and claw
- Connections tested to DIN EN 877
- Weight: 11.3 kg
- Rabattgruppe: 11
Sampling pot DN 200
Suitable for
- Grease separator LipuJet-S/Lipator-S
- NS 15 – 20
- Light oil separator Coalisator-E
- NS 20
Description
- Made from stainless steel, material grade 304
- Round shape
- For installation in DN 200 vertical pipes coming from grease separator
- With EC connector and claw
- Connections tested to DIN EN 877
- Weight: 11 kg
- Rabattgruppe: 11
Coarse trap DN 100
Suitable for
- Grease separator LipuJet-S/Lipator-S
- NS 1 – 4
- Starch separator FapuJet-S
- NS 0.5 – 1
Description
- Stainless steel, material grade 316
- Round shape
- Gradient drop: 70 mm
- For installation in DN 100 vertical pipes going to grease separator
- With EC connector and claw
- Connections tested to DIN EN 877
- Weight: 11 kg
- Rabattgruppe: 11
Coarse trap DN 150
Suitable for
- Grease separator LipuJet-S/Lipator-S
- NS 5.5 – 10
- Starch separator FapuJet-S
- NS 2
Description
- Stainless steel, material grade 316
- Round shape
- Gradient drop: 70 mm
- For installation in DN 150 vertical pipes going to grease separator
- With EC connector and claw
- Connections tested to DIN EN 877
- Weight: 13.4 kg
- Rabattgruppe: 11
Coarse trap DN 200
Stop valve
Suitable for
- Grease separators for free-standing installation
- Starch separator for free-standing installation
Description
- Made of cast iron
- Penstock plate, spindle made from stainless steel, material grade 304
- DN 100
- Length (L): 50 mm
- Spindle travel (H1 – H2): 365 – 465 mm
- Manual wheel diameter: 200 mm
- Weight: 15 kg
- Rabattgruppe: 11
Stop valve
Suitable for
- Grease separators for free-standing installation
- Starch separator for free-standing installation
Description
- Made of cast iron
- Penstock plate, spindle made from stainless steel, material grade 304
- DN 150
- Length (L): 60 mm
- Spindle travel (H1 – H2): 478 – 639 mm
- Manual wheel diameter: 200 mm
- Weight: 29.4 kg
- Rabattgruppe: 11
Flange connection part
Flange connection part
Operating Logbook
Suitable for
- Grease separator
- For underground installation
- For free-standing installation
Description
- Contents: Check-list and standard forms to document in-house monitoring, maintenance and disposal relating to the plant as required by DIN 4040-100
- Format: A4 with double filing rings
- Size: 60 pages
- Laid out to cover 5 years
- Weight: 0.3 kg
- Rabattgruppe: 11

















