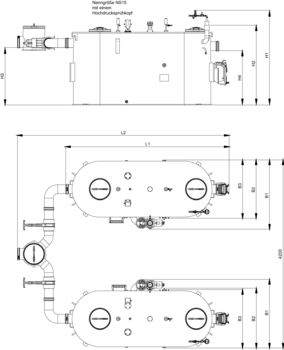
Grease separator LipuJet-P-OAP extension stage 3 – parallel
Product benefits
- With two inspection windows for sludge and grease control
- With high pressure spray head for perfect inner body cleaning
- Disposal pump for maximum lift heights up to 18 meters with 10 m3/h disposal performance
- Control unit with presets and flexible adjustments (cleaning and filling times)
Product information
- Grease separator plant in parallel installation according to EN 1825 for free standing installation in frost-proof rooms
- Consisting of two separators
- Grease separator according to EN 1825 for installation inside frost-free rooms
- Manufactured of polyethylene in oval shape
- Two covers odour-proof ∅ 450 mm
- Inlet and outlet ∅ 200 mm (NS 15 – 25) or ∅ 250 mm (NS 30)
- Automatically operated disposal pump (3,4 kW) with shut-off valve, disposal connection ∅ 75 mm with Storz-B coupling R 2½"
- Automatically operated high pressure pump (4,2 kW) and connection high pressure spray head (175 bar) for combined mixing of the content and cleaning of the tank
- Automatically operated filling device R ¾” via solenoid valve
- Electric connection 400 V / 50 (60) Hz / 16 A / 7,6 kW (each separator)
- Two inspection windows with wiper
- Operating side left or right
- Distribution unit with inlet Ø 250 mm with piping and shut-off valves between distribution unit and grease separators

Inlet valve DN 200
Grease layer thickness measuring device
Suitable for
- LipuJet-P
- Oval NS 1 – 10
- Round NS 2 – 22,5
- LipuJet-S
- Oval NS 1 – 10
- Round NS 2 – 20
- LipuSmart-P
- Oval NS 1 – 10
Description
- For electronic measurement of layer of grease
- Suitable for liquid and/or congealing grease
- Measuring device with plug and used connecting cable, length: 3 m
- With two voltage-free changeover contacts to display full warning (80%) and advance warning of fill level (50%)
- With visual display of fill level
- With heated probe rod to increase reliability of operation
- Operating voltage: 230VAC/5 VA
- Max consumption approx. 12W
- Weight: 2.8 kg
- Rabattgruppe: 11
Connection box
Suitable for
- Grease separator
- Starch separators
- LipuLift-P-D/-DA/-DAP
Description
- For disposal connection, pendulum gas line (if necessary) and remote control
- From stainless steel, material grade 304
- "Surface mounted” version
- Glass beaded front
- Lockable door, left limit stop
- Dimensions W x H x D: 300 x 725 x 160 mm
- Weight: 10 kg
- Rabattgruppe: 11
In-wall frame
ACO Ozone Generator
Suitable for
- Grease separators, indoors
- Grease separators, outdoors
- Lifting stations
- Pumping stations
Description
- ACO Ozone minimizes odors that can arise from grease seperators, lifting plants and pumping stations
- Material: acid-resistant stainless steel
Consists:
- ACO Ozone - ozone generator
- Size (L x W x H): 270 x 100 x 85 mm
- Nominal voltage 230 V / 50 Hz
- Degree of protection IP20
- ACO Ozone pump - feed pump
- Size (L x W x H): 160 x 90 x 90 mm
- Integrated filter
- Nominal voltage 230 V / 50 Hz
- Degree of protection IP54
- ACO Ozone bracket - wall bracket
- Size (L x W x H): 295 x 110 x 90 mm
- Hoses
- Rabattgruppe: 11
Heating rod
Sampling pot DN 200
Sampling pot DN 200
Coarse trap DN 200
Suitable for
- Grease separator LipuJet-P
- NS 15 – 25
Description
- For installation in vertical pipes DN 200 going to grease separator
- Round shape with
- Coupling socket seal (material SBR) on inlet and spigot on outflow
- Basket made from stainless steel, material grade 316 to retain coarse substances
- Odour-proof maintenance opening DN 450
- Weight: 9.9 kg
- Rabattgruppe: 11
Sampling pot DN 250
Sampling pot DN 250
Connection box
Storz coupling for swinging gas lines
In-wall frame
Connection box
Suitable for
- Grease separators
- LipuMax-P-D/DM/DA
- LipuJet-P-OD/RD/SD/OM/OMP/RM/RMP
- LipuJet-S-OD/RD/SD/OM/OMP/RM/RMP
- Stach seperators FapuMax-P-DA
- Oil separators Coalisator-P
- LipuLift-P-D/-DA/-DAP
Description
- For evacuation connection DN 80
- Made from stainless steel, material grade 304
- "On wall" version
- Door stop
- Choice of left or right
- Lockable door
- Dimensions (width x height x depth): 370 x 330 x 250 mm
- Weight: 10.4 kg
- Rabattgruppe: 11
Message system with GSM module
Suitable for
- All grease separators
- Grease layer thickness measuring device
- Pre-tank plants
- Technical processing systems
- Quatrix-K backflow preventer type 3F
- Sinkamat-K (underfloor) duo
- Muli lifting units
- Pumping stations
- Installation sets
Description
- Parameter via app (Android & iOs)
- Mains-independent alarm via 12V lead-gel battery
- Optical and acoustic alarm message
- Freely configurable inputs
- 6 digital inputs with LED status display
- 1 analogue
- 1 alarm output 12 V
- Alarm forwarding via SMS to mobile phones
- For mounting outside the hazardous area
- Housing: 192 x 150(with cable gland) x 100 mm (WxHxD)
- Protective doctor: IP54
- Operating voltage: 230 V/AC 50/60 Hz
- Weight: 2 kg
- Rabattgruppe: 12
Remote control
Suitable for
- Grease separator
- LipuJet-P OA/OAP/RA/RAP
- LipuJet-S OA/OAP/RA/RAP
- LipuMax-P-DA
- LipuSmart-P-OA/OAP
- Starch separator FapuJet
Description
- For internal fitting or fitting in connection boxes
- Control line without protective conductor on-site
- Up to 50 m: 7 x 1.0 mm²
- 50 – 200 m 7 x 1.5 mm²
- Weight: 1 kg
- Rabattgruppe: 11

Inlet valve DN 200
Grease layer thickness measuring device
Suitable for
- LipuJet-P
- Oval NS 1 – 10
- Round NS 2 – 22,5
- LipuJet-S
- Oval NS 1 – 10
- Round NS 2 – 20
- LipuSmart-P
- Oval NS 1 – 10
Description
- For electronic measurement of layer of grease
- Suitable for liquid and/or congealing grease
- Measuring device with plug and used connecting cable, length: 3 m
- With two voltage-free changeover contacts to display full warning (80%) and advance warning of fill level (50%)
- With visual display of fill level
- With heated probe rod to increase reliability of operation
- Operating voltage: 230VAC/5 VA
- Max consumption approx. 12W
- Weight: 2.8 kg
- Rabattgruppe: 11
Connection box
Suitable for
- Grease separator
- Starch separators
- LipuLift-P-D/-DA/-DAP
Description
- For disposal connection, pendulum gas line (if necessary) and remote control
- From stainless steel, material grade 304
- "Surface mounted” version
- Glass beaded front
- Lockable door, left limit stop
- Dimensions W x H x D: 300 x 725 x 160 mm
- Weight: 10 kg
- Rabattgruppe: 11
In-wall frame
ACO Ozone Generator
Suitable for
- Grease separators, indoors
- Grease separators, outdoors
- Lifting stations
- Pumping stations
Description
- ACO Ozone minimizes odors that can arise from grease seperators, lifting plants and pumping stations
- Material: acid-resistant stainless steel
Consists:
- ACO Ozone - ozone generator
- Size (L x W x H): 270 x 100 x 85 mm
- Nominal voltage 230 V / 50 Hz
- Degree of protection IP20
- ACO Ozone pump - feed pump
- Size (L x W x H): 160 x 90 x 90 mm
- Integrated filter
- Nominal voltage 230 V / 50 Hz
- Degree of protection IP54
- ACO Ozone bracket - wall bracket
- Size (L x W x H): 295 x 110 x 90 mm
- Hoses
- Rabattgruppe: 11
Heating rod
Sampling pot DN 200
Sampling pot DN 200
Coarse trap DN 200
Suitable for
- Grease separator LipuJet-P
- NS 15 – 25
Description
- For installation in vertical pipes DN 200 going to grease separator
- Round shape with
- Coupling socket seal (material SBR) on inlet and spigot on outflow
- Basket made from stainless steel, material grade 316 to retain coarse substances
- Odour-proof maintenance opening DN 450
- Weight: 9.9 kg
- Rabattgruppe: 11
Sampling pot DN 250
Sampling pot DN 250
Connection box
Storz coupling for swinging gas lines
In-wall frame
Connection box
Suitable for
- Grease separators
- LipuMax-P-D/DM/DA
- LipuJet-P-OD/RD/SD/OM/OMP/RM/RMP
- LipuJet-S-OD/RD/SD/OM/OMP/RM/RMP
- Stach seperators FapuMax-P-DA
- Oil separators Coalisator-P
- LipuLift-P-D/-DA/-DAP
Description
- For evacuation connection DN 80
- Made from stainless steel, material grade 304
- "On wall" version
- Door stop
- Choice of left or right
- Lockable door
- Dimensions (width x height x depth): 370 x 330 x 250 mm
- Weight: 10.4 kg
- Rabattgruppe: 11
Message system with GSM module
Suitable for
- All grease separators
- Grease layer thickness measuring device
- Pre-tank plants
- Technical processing systems
- Quatrix-K backflow preventer type 3F
- Sinkamat-K (underfloor) duo
- Muli lifting units
- Pumping stations
- Installation sets
Description
- Parameter via app (Android & iOs)
- Mains-independent alarm via 12V lead-gel battery
- Optical and acoustic alarm message
- Freely configurable inputs
- 6 digital inputs with LED status display
- 1 analogue
- 1 alarm output 12 V
- Alarm forwarding via SMS to mobile phones
- For mounting outside the hazardous area
- Housing: 192 x 150(with cable gland) x 100 mm (WxHxD)
- Protective doctor: IP54
- Operating voltage: 230 V/AC 50/60 Hz
- Weight: 2 kg
- Rabattgruppe: 12
Remote control
Suitable for
- Grease separator
- LipuJet-P OA/OAP/RA/RAP
- LipuJet-S OA/OAP/RA/RAP
- LipuMax-P-DA
- LipuSmart-P-OA/OAP
- Starch separator FapuJet
Description
- For internal fitting or fitting in connection boxes
- Control line without protective conductor on-site
- Up to 50 m: 7 x 1.0 mm²
- 50 – 200 m 7 x 1.5 mm²
- Weight: 1 kg
- Rabattgruppe: 11























