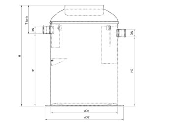
Lipumax G-DM
Product benefits
- Simple to install, requires less space
- Top section with odour proof sealed cover
- Integrated connection for sampling device
- Including rubber seal ring for connection with cover plate
Product information
- Tank made of glass reinforced plastic
- With integrated sludge trap
- One-piece construction
- Inner parts made of PEHD
Lipumax G-B (Basic version)
- Disposal and cleaning by opening the cover (associated with the formation of noxious smells)

Lipumax G-D (Extension stage 1)
- Odour-free disposal via a connector to direct suction
- After-cleaning by opening the cover (associated with the slight formation of noxious smells)
- Disposal connection DN65 (flange 75)

Lipumax G-DM (Extension stage 2)
- Manual odour-free disposal/cleaning via direct suction and hydro-mechanic high-pressure inner cleaning
- Disposal connection DN65 (flange 75)
- Filling device with ball valve for re-filling with fresh water
- Hydro-mechanic inner cleaning via high-pressure pump and spray head

Lipumax G-DA (Extension stage 3)
- Programmed, odour-free disposal/cleaning via direct suction and hydro-mechanic high-pressure inner cleaning
- Disposal connection DN65 (flange 75)
- Filling device with soleniod valve for re-filling with fresh water
- Hydro-mechanic inner cleaning via high-pressure pump and spray head

Control unit GA 1 + one sensor GA - SG1
Suitable for
GA-1 is an alarm device specially designed for grease separators. They indicate when it is time to empty the grease separator and thus prevents harmful grease emissions to the sewer system.
Description
- Dimensions: 125 mm x 75 mm x 35 mm (L x H x D
- Material: Polycarbonate
- Enclosure: IP65
- Operation temperature: -30 °C...+50 °C
- Supply voltage: 230 VAC ± 10 %, 50/60 Hz
- The device is not equipped with a mains switch
- Power consumption: GA-1: 5 VA, GA-2: 5 VA
- Sensors: 1 or 2 GA-SG1 sensors
- Relay outputs: Potential-free relay output 250 V, 5 A
- 1 pcs for GA-1 Operational delay 10 sec. Relay de-energize
- 2 pcs for GA-2 at trigger point.
- Electrical safety: IEC/EN 61010-1, Class II , CAT II
- EMC: IEC/EN 61000-6-3 (Emission)
- IEC/EN 61000-6-1 (Immunity)
Control unit GA 2 + two senzors GA - SG1
Suitable for
GA-2 is an alarm device for monitoring the thickness of the grease layer accumulating in a grease interceptor and the blocking of the interceptor. The system consists of a GA-2 control unit, two GA-SG1 sensors and a cable joint.
Description
- Dimensions 125 mm x 75 mm x 35 mm (L x H x D)
- Package 1,2 kg (control unit + 2 sensors + cable joint)
- Enclosure IP 65, material polycarbonate
- Cable glands adjustment range 6-10 mm
- Operation temperature -30 ºC...+50 ºC
- Supply voltage 230 VAC ± 10 %, 50/60 Hz
- The device is not equipped with a mains switch
- Power consumption 5 VA
- Sensors 2 pcs GA-SG1 sensors
- Relay output 2 pcs potential-free relay outputs
- 250 V, 5 A Operational delay 10 sec.
- Relay de-energize at trigger point.
- Electrical safety IEC/EN 61010-1, Class II , CAT II
- EMC Emission IEC/EN 61000-6-3
- Immunity IEC/EN 61000-6-1
Lipumax G-B (Basic version)
- Disposal and cleaning by opening the cover (associated with the formation of noxious smells)

Lipumax G-D (Extension stage 1)
- Odour-free disposal via a connector to direct suction
- After-cleaning by opening the cover (associated with the slight formation of noxious smells)
- Disposal connection DN65 (flange 75)

Lipumax G-DM (Extension stage 2)
- Manual odour-free disposal/cleaning via direct suction and hydro-mechanic high-pressure inner cleaning
- Disposal connection DN65 (flange 75)
- Filling device with ball valve for re-filling with fresh water
- Hydro-mechanic inner cleaning via high-pressure pump and spray head

Lipumax G-DA (Extension stage 3)
- Programmed, odour-free disposal/cleaning via direct suction and hydro-mechanic high-pressure inner cleaning
- Disposal connection DN65 (flange 75)
- Filling device with soleniod valve for re-filling with fresh water
- Hydro-mechanic inner cleaning via high-pressure pump and spray head

Control unit GA 1 + one sensor GA - SG1
Suitable for
GA-1 is an alarm device specially designed for grease separators. They indicate when it is time to empty the grease separator and thus prevents harmful grease emissions to the sewer system.
Description
- Dimensions: 125 mm x 75 mm x 35 mm (L x H x D
- Material: Polycarbonate
- Enclosure: IP65
- Operation temperature: -30 °C...+50 °C
- Supply voltage: 230 VAC ± 10 %, 50/60 Hz
- The device is not equipped with a mains switch
- Power consumption: GA-1: 5 VA, GA-2: 5 VA
- Sensors: 1 or 2 GA-SG1 sensors
- Relay outputs: Potential-free relay output 250 V, 5 A
- 1 pcs for GA-1 Operational delay 10 sec. Relay de-energize
- 2 pcs for GA-2 at trigger point.
- Electrical safety: IEC/EN 61010-1, Class II , CAT II
- EMC: IEC/EN 61000-6-3 (Emission)
- IEC/EN 61000-6-1 (Immunity)
Control unit GA 2 + two senzors GA - SG1
Suitable for
GA-2 is an alarm device for monitoring the thickness of the grease layer accumulating in a grease interceptor and the blocking of the interceptor. The system consists of a GA-2 control unit, two GA-SG1 sensors and a cable joint.
Description
- Dimensions 125 mm x 75 mm x 35 mm (L x H x D)
- Package 1,2 kg (control unit + 2 sensors + cable joint)
- Enclosure IP 65, material polycarbonate
- Cable glands adjustment range 6-10 mm
- Operation temperature -30 ºC...+50 ºC
- Supply voltage 230 VAC ± 10 %, 50/60 Hz
- The device is not equipped with a mains switch
- Power consumption 5 VA
- Sensors 2 pcs GA-SG1 sensors
- Relay output 2 pcs potential-free relay outputs
- 250 V, 5 A Operational delay 10 sec.
- Relay de-energize at trigger point.
- Electrical safety IEC/EN 61010-1, Class II , CAT II
- EMC Emission IEC/EN 61000-6-3
- Immunity IEC/EN 61000-6-1



