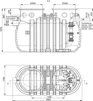
Pumping stations Powerlift-PF-H Flex
Product benefits
- Tested in accordance with DIN EN 12050-1
- Suitable for grey and black water (after pumps)
- Automatic underwater coupling with sliding pipe
- Large usable volume up to max.: 1790 litres
- Proven stability of the container: 50 years
- Suitable for
- Grey and black water
- Use behind grease separators
Product information
- Scope
- Commercial and industrial establishments
- Surface water
- Behind separators up to NS20
- Polyethylene tanks
- Below ground installation
- Designed for assembly of top-mounted systems
- 2 x maintenance openings ∅ 840 mm for consumption of a necessary cover system (accessories) with load classes B 125 or D 400
- Inlet invert ZT: 1160-1920 mm after extension system (distance from top edge of ground to lower edge of connection port/pipe bottom)
- Maximum installation depth ET up to 3 m (distance from the top edge of the ground to the lower edge of the container)
- Buoyancy safety of the container: Buoyancy safety up to 1.65 m above the lower edge of the container with extension system and load distribution plate (B 125 and D 400)
- Connections
- Horizontal pipe socket DN 200/ OD 200 mm for inlet line on site
- Horizontal pipe socket DN 100/ OD110 mm for discharge line on site
- 8 x horizontal pipe sockets (closed) DN 100/OD 110 mm for vent stack on site
- Discharge line
- Cast iron backflow preventer, Y-branch pipe and transition elements
- Automatic underwater coupling for the consumption of ACO submerged pumps with coupling piece
- Level switching
- Optional pressure bell or pressure transducer (both accessories)
- Approved pumping temperature up to 40 °C (max. 65 °C for short periods)
- Pumps, control, covers, level measuring are not included in the scope of supply and must be ordered separately (see accessories)
Switching device, ACO Multi Control Duo Advanced incl. Dynamic pressure bell
Suitable for
- Muli-Max
- Duo-plants
- Powerlift–P / Powerlift-P/F-H
- Muli-Flex
Description
- For pumps up to 5,5 kW
- Plug and use with 1.5 m mains cable
- Operating voltage: 400 V
- Frequency: 50/60 Hz
- Control voltage: 230 V/AC
- Current consumption when idling: max 10 VA
- Temperature range: -20 to +60 ° C
- IP 54 protection
- CEE 16 plug with phase-changing switch
- Convertible to CEE 32 with item no. 0150.79.75 (5G4 with CEE 32 plug)
- 20 m pneumatic control cable 8 x 6 mm
- Weight: 5.4 kg
- Rabattgruppe: 12
Switching device, ACO Multi Control Duo Professional incl. Dynamic pressure bell
Suitable for
- Muli-Max
- Duo-plants
- Powerlift–P / Powerlift-P/F-H
- Muli-Flex
Description
- For pumps up to 5,5 kW
- Plug and use with 1.5 m mains cable
- Operating voltage: 400 V
- Frequency: 50/60 Hz
- Control voltage: 230 V/AC
- Current consumption when idling: max 10 VA
- Temperature range: -20 to +60 ° C
- IP 54 protection
- With Modbus RTU functionality for connection to the building management system
- CEE 16 plug with phase-changing switch
- Convertible to CEE 32 with item no. 0150.79.75 (5G4 with CEE 32 plug)
- 20 m pneumatic control cable 8 x 6 mm
- Mains-independent alarm via 9V rechargeable battery (85dBA, 5-6h)
- Weight: 5.4 kg
- Rabattgruppe: 12
Switching device, ACO Multi Control Duo Professional without Dynamic pressure bell
Suitable for
- Muli-Nova DDP
- Muli-Nova x.1 / x.2
- Muli-Max
- Duo
- Powerlift–P/Powerlift-P/F-H
- Muli-Flex
Description
- For pumps up to 5,5 kW
- Plug and use with 1.5 m mains cable
- Operating voltage: 400 V
- Frequency: 50/60 Hz
- Control voltage: 230 V/AC
- Current consumption when idling: max 10 VA
- Temperature range: -20 to +60 ° C
- IP 54 protection
- With Modbus RTU functionality for connection to the building management system
- CEE 16 plug with phase-changing switch
- Convertible to CEE 32 with item no. 0150.79.75 (5G4 with CEE 32 plug)
- Without control cable
- Mains-independent alarm via 9V rechargeable battery (85dBA, 5-6h)
- Weight: 5.4 kg
- Rabattgruppe: 12
Switching device, ACO Multi Control Duo Advanced without Dynamic pressure bell
Suitable for
- Muli-Max
- Duo
- Powerlift–P / Powerlift-P/F-H
- Muli-Flex
- Muli-Nova DDP
- Muli-Nova x.1 / x.2
Description
- For pumps up to 5,5 kW
- Plug and use with 1.5 m mains cable
- Operating voltage: 400 V
- Frequency: 50/60 Hz
- Control voltage: 230 V/AC
- Current consumption when idling: max 10 VA
- Temperature range: -20 to +60 ° C
- IP 54 protection
- CEE 16 plug with phase-changing switch
- Convertible to CEE 32 with item no. 0150.79.75 (5G4 with CEE 32 plug)
- Without control line
- Weight: 5.4 kg
- Rabattgruppe: 12
Signalling unit
Suitable for
- Faecal matter backflow automatic stop Quatrix-K type 3F
- All Muli wastewater lifting plants
- Upstream tank plant mono/duo
- Muli-Max
- Powerlift–P / Powerlift-P/F-H
- Sinkamat –K/-KD
- Sinkamat-Z
- Sinkamat-Z (underfloor)
- Duo
- LipuLift-P
Description
- Self-charging
- With floating contact
- Visual and acoustic
- Without contact transmitter
- For mounting outside the potentially explosive atmosphere
- Dimensions: 175 x 125 x 75 mm W x H x D
- Protection type: IP65
- Operating voltage: 230 V/AC 50/60 Hz
- Ready to plug in with cable: 2 m
- Weight: 1.4 kg
- Rabattgruppe: 12
Message system with GSM module
Suitable for
- All grease separators
- Grease layer thickness measuring device
- Pre-tank plants
- Technical processing systems
- Quatrix-K backflow preventer type 3F
- Sinkamat-K (underfloor) duo
- Muli lifting units
- Pumping stations
- Installation sets
Description
- Parameter via app (Android & iOs)
- Mains-independent alarm via 12V lead-gel battery
- Optical and acoustic alarm message
- Freely configurable inputs
- 6 digital inputs with LED status display
- 1 analogue
- 1 alarm output 12 V
- Alarm forwarding via SMS to mobile phones
- For mounting outside the hazardous area
- Housing: 192 x 150(with cable gland) x 100 mm (WxHxD)
- Protective doctor: IP54
- Operating voltage: 230 V/AC 50/60 Hz
- Weight: 2 kg
- Rabattgruppe: 12
Air bubble injection
Connection cable antenna GSM
Flashing light
Signal horn
Signal horn
Floater
Float switch
Suitable for
- For faecal and non-faecal wastewater
- MultiControl controls as float switches
- MultiControl controls as additional High alarm float
Description
- Housing: PRE-ELEC PP
- Degree of protection: IP68
- Switch voltage: 4-40 V
- Switch current: 1-100 mA
- Connection cable: 10m
- Switch inclination: 10°
- Protection class: II 1G Ex ia IIC T6 Ga
- Rabattgruppe: 12
pressure sensor
pressure sensor
Safety barrier
Outdoor cabinet for local pressure pipes an controller
Suitable for
- Muli-Max
- Powerlift–P / Powerlift-P/F-H
- LipuLift-P-B/P-D
Description
- Dimension: 2000 x 806 x 335 mm (H x W x D)
- With reserve space for installation of an on-site backflow loop according to DIN 12056-4 and 1986-100
- DN 50 – DN 150
- With mounting plate incl. base
- With lamp
- With CEE16 and work socket
- Integrated back-up fuse: 3-pole C20A
- Integrated Fi 40 40/0.03A 4-pole
- With heating and thermostat
- With security lock
- Weight: 76 kg
- Rabattgruppe: 12
Outdoor cabinet
Suitable for
- ACO Multi-Control switching device
- LipuLift-P-B/P-D
- Powerlift-P/F-H
Description
- Dimensions: 310 x 1460 x 207 mm (H x W x D)
- With pre-fuse C16 (16 A)
- With 10 mm² PE-terminals for voltage compensation
- Flashing light (knock resistant)
- Closed using safety lock cylinder
- Weight: 21.1 kg
- Rabattgruppe: 12
Open air cupboard
Suitable for
- GRP outdoor cabinet for on-site pressure line
- DN 80
- DN 100
- DN 125
- DN 150
- LipuLift-P Serie
- Powerlift-P/F-H
Description
- With reserve space for installation of an on-site backflow loop according to DIN 12056-4 and 1986-100
- With mounting plate incl. base
- With heating and thermostat
- With CEE32 and work socket with earth contact
- Integrated back-up fuse: 3-pole B32A
- Integrated Fi 40 40/0.03A 4-pole
- Dimension: 2000 x 806 x 335 mm (H x W x D)
- Weight: 100 kg
- Rabattgruppe: 12
Support ring
Suitable for
- Grease separator LipuMax-P for underground installation
- Lipulift-P Serie
- Starch separator FapuMax-P for underground installation
Description
- Made from concrete
- Diameter: 625 mm
- Thickness: 60 mm
- Without seal
- Displacement-proof
- Height
- 60 mm excluding mortar joints
- 70 mm including mortar joints
- Weight: 50 kg
- Rabattgruppe: 11
Support ring
Suitable for
- Grease separator LipuMax-P for underground installation
- Lipulift-P Serie
- Starch separator FapuMax-P for underground installation
Description
- Made from concrete
- Diameter: 625 mm
- Thickness: 80 mm
- Without seal
- Displacement-proof
- Height
- 80 mm excluding mortar joints
- 90 mm including mortar joints
- Weight: 60 kg
- Rabattgruppe: 11
Support ring
Suitable for
- Grease separator LipuMax-P for underground installation
- Lipulift-P Serie
- Starch separator FapuMax-P for underground installation
Description
- Made from concrete
- Diameter: 625 mm
- Thickness: 100 mm
- Without seal
- Displacement-proof
- Height
- 100 mm excluding mortar joints
- 110 mm including mortar joints
- Weight: 70 kg
- Rabattgruppe: 11
Switching device, ACO Multi Control Duo Advanced incl. Dynamic pressure bell
Suitable for
- Muli-Max
- Duo-plants
- Powerlift–P / Powerlift-P/F-H
- Muli-Flex
Description
- For pumps up to 5,5 kW
- Plug and use with 1.5 m mains cable
- Operating voltage: 400 V
- Frequency: 50/60 Hz
- Control voltage: 230 V/AC
- Current consumption when idling: max 10 VA
- Temperature range: -20 to +60 ° C
- IP 54 protection
- CEE 16 plug with phase-changing switch
- Convertible to CEE 32 with item no. 0150.79.75 (5G4 with CEE 32 plug)
- 20 m pneumatic control cable 8 x 6 mm
- Weight: 5.4 kg
- Rabattgruppe: 12
Switching device, ACO Multi Control Duo Professional incl. Dynamic pressure bell
Suitable for
- Muli-Max
- Duo-plants
- Powerlift–P / Powerlift-P/F-H
- Muli-Flex
Description
- For pumps up to 5,5 kW
- Plug and use with 1.5 m mains cable
- Operating voltage: 400 V
- Frequency: 50/60 Hz
- Control voltage: 230 V/AC
- Current consumption when idling: max 10 VA
- Temperature range: -20 to +60 ° C
- IP 54 protection
- With Modbus RTU functionality for connection to the building management system
- CEE 16 plug with phase-changing switch
- Convertible to CEE 32 with item no. 0150.79.75 (5G4 with CEE 32 plug)
- 20 m pneumatic control cable 8 x 6 mm
- Mains-independent alarm via 9V rechargeable battery (85dBA, 5-6h)
- Weight: 5.4 kg
- Rabattgruppe: 12
Switching device, ACO Multi Control Duo Professional without Dynamic pressure bell
Suitable for
- Muli-Nova DDP
- Muli-Nova x.1 / x.2
- Muli-Max
- Duo
- Powerlift–P/Powerlift-P/F-H
- Muli-Flex
Description
- For pumps up to 5,5 kW
- Plug and use with 1.5 m mains cable
- Operating voltage: 400 V
- Frequency: 50/60 Hz
- Control voltage: 230 V/AC
- Current consumption when idling: max 10 VA
- Temperature range: -20 to +60 ° C
- IP 54 protection
- With Modbus RTU functionality for connection to the building management system
- CEE 16 plug with phase-changing switch
- Convertible to CEE 32 with item no. 0150.79.75 (5G4 with CEE 32 plug)
- Without control cable
- Mains-independent alarm via 9V rechargeable battery (85dBA, 5-6h)
- Weight: 5.4 kg
- Rabattgruppe: 12
Switching device, ACO Multi Control Duo Advanced without Dynamic pressure bell
Suitable for
- Muli-Max
- Duo
- Powerlift–P / Powerlift-P/F-H
- Muli-Flex
- Muli-Nova DDP
- Muli-Nova x.1 / x.2
Description
- For pumps up to 5,5 kW
- Plug and use with 1.5 m mains cable
- Operating voltage: 400 V
- Frequency: 50/60 Hz
- Control voltage: 230 V/AC
- Current consumption when idling: max 10 VA
- Temperature range: -20 to +60 ° C
- IP 54 protection
- CEE 16 plug with phase-changing switch
- Convertible to CEE 32 with item no. 0150.79.75 (5G4 with CEE 32 plug)
- Without control line
- Weight: 5.4 kg
- Rabattgruppe: 12
Signalling unit
Suitable for
- Faecal matter backflow automatic stop Quatrix-K type 3F
- All Muli wastewater lifting plants
- Upstream tank plant mono/duo
- Muli-Max
- Powerlift–P / Powerlift-P/F-H
- Sinkamat –K/-KD
- Sinkamat-Z
- Sinkamat-Z (underfloor)
- Duo
- LipuLift-P
Description
- Self-charging
- With floating contact
- Visual and acoustic
- Without contact transmitter
- For mounting outside the potentially explosive atmosphere
- Dimensions: 175 x 125 x 75 mm W x H x D
- Protection type: IP65
- Operating voltage: 230 V/AC 50/60 Hz
- Ready to plug in with cable: 2 m
- Weight: 1.4 kg
- Rabattgruppe: 12
Message system with GSM module
Suitable for
- All grease separators
- Grease layer thickness measuring device
- Pre-tank plants
- Technical processing systems
- Quatrix-K backflow preventer type 3F
- Sinkamat-K (underfloor) duo
- Muli lifting units
- Pumping stations
- Installation sets
Description
- Parameter via app (Android & iOs)
- Mains-independent alarm via 12V lead-gel battery
- Optical and acoustic alarm message
- Freely configurable inputs
- 6 digital inputs with LED status display
- 1 analogue
- 1 alarm output 12 V
- Alarm forwarding via SMS to mobile phones
- For mounting outside the hazardous area
- Housing: 192 x 150(with cable gland) x 100 mm (WxHxD)
- Protective doctor: IP54
- Operating voltage: 230 V/AC 50/60 Hz
- Weight: 2 kg
- Rabattgruppe: 12
Air bubble injection
Connection cable antenna GSM
Flashing light
Signal horn
Signal horn
Floater
Float switch
Suitable for
- For faecal and non-faecal wastewater
- MultiControl controls as float switches
- MultiControl controls as additional High alarm float
Description
- Housing: PRE-ELEC PP
- Degree of protection: IP68
- Switch voltage: 4-40 V
- Switch current: 1-100 mA
- Connection cable: 10m
- Switch inclination: 10°
- Protection class: II 1G Ex ia IIC T6 Ga
- Rabattgruppe: 12
pressure sensor
pressure sensor
Safety barrier
Outdoor cabinet for local pressure pipes an controller
Suitable for
- Muli-Max
- Powerlift–P / Powerlift-P/F-H
- LipuLift-P-B/P-D
Description
- Dimension: 2000 x 806 x 335 mm (H x W x D)
- With reserve space for installation of an on-site backflow loop according to DIN 12056-4 and 1986-100
- DN 50 – DN 150
- With mounting plate incl. base
- With lamp
- With CEE16 and work socket
- Integrated back-up fuse: 3-pole C20A
- Integrated Fi 40 40/0.03A 4-pole
- With heating and thermostat
- With security lock
- Weight: 76 kg
- Rabattgruppe: 12
Outdoor cabinet
Suitable for
- ACO Multi-Control switching device
- LipuLift-P-B/P-D
- Powerlift-P/F-H
Description
- Dimensions: 310 x 1460 x 207 mm (H x W x D)
- With pre-fuse C16 (16 A)
- With 10 mm² PE-terminals for voltage compensation
- Flashing light (knock resistant)
- Closed using safety lock cylinder
- Weight: 21.1 kg
- Rabattgruppe: 12
Open air cupboard
Suitable for
- GRP outdoor cabinet for on-site pressure line
- DN 80
- DN 100
- DN 125
- DN 150
- LipuLift-P Serie
- Powerlift-P/F-H
Description
- With reserve space for installation of an on-site backflow loop according to DIN 12056-4 and 1986-100
- With mounting plate incl. base
- With heating and thermostat
- With CEE32 and work socket with earth contact
- Integrated back-up fuse: 3-pole B32A
- Integrated Fi 40 40/0.03A 4-pole
- Dimension: 2000 x 806 x 335 mm (H x W x D)
- Weight: 100 kg
- Rabattgruppe: 12
Support ring
Suitable for
- Grease separator LipuMax-P for underground installation
- Lipulift-P Serie
- Starch separator FapuMax-P for underground installation
Description
- Made from concrete
- Diameter: 625 mm
- Thickness: 60 mm
- Without seal
- Displacement-proof
- Height
- 60 mm excluding mortar joints
- 70 mm including mortar joints
- Weight: 50 kg
- Rabattgruppe: 11
Support ring
Suitable for
- Grease separator LipuMax-P for underground installation
- Lipulift-P Serie
- Starch separator FapuMax-P for underground installation
Description
- Made from concrete
- Diameter: 625 mm
- Thickness: 80 mm
- Without seal
- Displacement-proof
- Height
- 80 mm excluding mortar joints
- 90 mm including mortar joints
- Weight: 60 kg
- Rabattgruppe: 11
Support ring
Suitable for
- Grease separator LipuMax-P for underground installation
- Lipulift-P Serie
- Starch separator FapuMax-P for underground installation
Description
- Made from concrete
- Diameter: 625 mm
- Thickness: 100 mm
- Without seal
- Displacement-proof
- Height
- 100 mm excluding mortar joints
- 110 mm including mortar joints
- Weight: 70 kg
- Rabattgruppe: 11
























