ACO Grease Capture 2.0
Product benefits
- High separation efficiency
- Automatic grease removal
- High Maintenance Comfort
- Ergonomic design - installation in existing kitchens
- Installed directly at the source of contamination
- Protects the buidling as well as sewer from grease blockages
- Potencial for grease reuse
Product information
- Input: 100-240 VAC, 50/60 Hz
- Output: 24 VDC, 40W

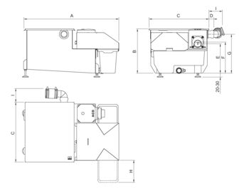
| Item number | Dimensions | Shipping dimensions | ||||||||||
|---|---|---|---|---|---|---|---|---|---|---|---|---|
| A | B | C | D | E | F | G | H | I | l | w | h | |
| [mm] | [mm] | [mm] | [mm] | [mm] | [mm] | [mm] | [mm] | [mm] | [mm] | [mm] | [mm] | |
| 3041420 | 643 | 341.5 | 461 | 38 | 226.5 | 239.5 | 300 | 431 | 120 | 773 | 505 | 343 |
| 3041421 | 643 | 341.5 | 461 | 38 | 226.5 | 239.5 | 300 | 431 | 120 | 773 | 505 | 343 |
| 3041422 | 643 | 341.5 | 461 | 38 | 226.5 | 239.5 | 300 | 431 | 120 | 773 | 505 | 343 |
| 3041423 | 643 | 341.5 | 461 | 38 | 226.5 | 239.5 | 300 | 431 | 120 | 773 | 505 | 343 |
| 3041424 | 643 | 341.5 | 461 | 38 | 226.5 | 239.5 | 300 | 431 | 120 | 773 | 505 | 343 |
| 3041425 | 643 | 341.5 | 461 | 38 | 226.5 | 239.5 | 300 | 431 | 120 | 773 | 505 | 343 |
| 3041432 | 743 | 341.5 | 461 | 38 | 226.5 | 239.5 | 300 | 431 | 120 | 773 | 505 | 343 |
| 3041433 | 743 | 341.5 | 461 | 38 | 226.5 | 239.5 | 300 | 431 | 120 | 773 | 505 | 343 |
| 3041434 | 743 | 341.5 | 461 | 38 | 226.5 | 239.5 | 300 | 431 | 120 | 773 | 505 | 343 |
| 3041435 | 743 | 341.5 | 461 | 38 | 226.5 | 239.5 | 300 | 431 | 120 | 773 | 505 | 343 |
| 3041436 | 743 | 341.5 | 461 | 38 | 226.5 | 239.5 | 300 | 431 | 120 | 773 | 505 | 343 |
| 3041437 | 743 | 341.5 | 461 | 38 | 226.5 | 239.5 | 300 | 431 | 120 | 773 | 505 | 343 |
| 3041444 | 973 | 341.5 | 461 | 38 | 226.5 | 239.5 | 300 | 431 | 120 | 1003 | 505 | 343 |
| 3041445 | 973 | 341.5 | 461 | 38 | 226.5 | 239.5 | 300 | 431 | 120 | 1003 | 505 | 343 |
| 3041446 | 973 | 341.5 | 461 | 38 | 226.5 | 239.5 | 300 | 431 | 120 | 1003 | 505 | 343 |
| 3041447 | 973 | 341.5 | 461 | 38 | 226.5 | 239.5 | 300 | 431 | 120 | 1003 | 505 | 343 |
| 3041448 | 973 | 341.5 | 461 | 38 | 226.5 | 239.5 | 300 | 431 | 120 | 1003 | 505 | 343 |
| 3041449 | 973 | 341.5 | 461 | 38 | 226.5 | 239.5 | 300 | 431 | 120 | 1003 | 505 | 343 |
| 3041457 | 1313 | 341.5 | 461 | 38 | 226.5 | 239.5 | 300 | 431 | 120 | 1343 | 505 | 343 |
| 3041458 | 1313 | 341.5 | 461 | 38 | 226.5 | 239.5 | 300 | 431 | 120 | 1343 | 505 | 343 |
| 3041459 | 1313 | 341.5 | 461 | 38 | 226.5 | 239.5 | 300 | 431 | 120 | 1343 | 505 | 343 |
| 3041460 | 1313 | 341.5 | 461 | 38 | 226.5 | 239.5 | 300 | 431 | 120 | 1343 | 505 | 343 |
| 3041461 | 1313 | 341.5 | 461 | 38 | 226.5 | 239.5 | 300 | 431 | 120 | 1343 | 505 | 343 |
| 3041462 | 1313 | 341.5 | 461 | 38 | 226.5 | 239.5 | 300 | 431 | 120 | 1343 | 505 | 343 |

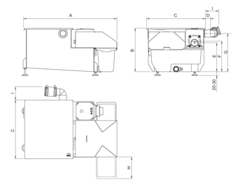
| Item number | Dimensions | Shipping dimensions | ||||||||||
|---|---|---|---|---|---|---|---|---|---|---|---|---|
| A | B | C | D | E | F | G | H | I | l | w | h | |
| [mm] | [mm] | [mm] | [mm] | [mm] | [mm] | [mm] | [mm] | [mm] | [mm] | [mm] | [mm] | |
| 3041420 | 643 | 341.5 | 461 | 38 | 226.5 | 239.5 | 300 | 431 | 120 | 773 | 505 | 343 |
| 3041421 | 643 | 341.5 | 461 | 38 | 226.5 | 239.5 | 300 | 431 | 120 | 773 | 505 | 343 |
| 3041422 | 643 | 341.5 | 461 | 38 | 226.5 | 239.5 | 300 | 431 | 120 | 773 | 505 | 343 |
| 3041423 | 643 | 341.5 | 461 | 38 | 226.5 | 239.5 | 300 | 431 | 120 | 773 | 505 | 343 |
| 3041424 | 643 | 341.5 | 461 | 38 | 226.5 | 239.5 | 300 | 431 | 120 | 773 | 505 | 343 |
| 3041425 | 643 | 341.5 | 461 | 38 | 226.5 | 239.5 | 300 | 431 | 120 | 773 | 505 | 343 |
| 3041432 | 743 | 341.5 | 461 | 38 | 226.5 | 239.5 | 300 | 431 | 120 | 773 | 505 | 343 |
| 3041433 | 743 | 341.5 | 461 | 38 | 226.5 | 239.5 | 300 | 431 | 120 | 773 | 505 | 343 |
| 3041434 | 743 | 341.5 | 461 | 38 | 226.5 | 239.5 | 300 | 431 | 120 | 773 | 505 | 343 |
| 3041435 | 743 | 341.5 | 461 | 38 | 226.5 | 239.5 | 300 | 431 | 120 | 773 | 505 | 343 |
| 3041436 | 743 | 341.5 | 461 | 38 | 226.5 | 239.5 | 300 | 431 | 120 | 773 | 505 | 343 |
| 3041437 | 743 | 341.5 | 461 | 38 | 226.5 | 239.5 | 300 | 431 | 120 | 773 | 505 | 343 |
| 3041444 | 973 | 341.5 | 461 | 38 | 226.5 | 239.5 | 300 | 431 | 120 | 1003 | 505 | 343 |
| 3041445 | 973 | 341.5 | 461 | 38 | 226.5 | 239.5 | 300 | 431 | 120 | 1003 | 505 | 343 |
| 3041446 | 973 | 341.5 | 461 | 38 | 226.5 | 239.5 | 300 | 431 | 120 | 1003 | 505 | 343 |
| 3041447 | 973 | 341.5 | 461 | 38 | 226.5 | 239.5 | 300 | 431 | 120 | 1003 | 505 | 343 |
| 3041448 | 973 | 341.5 | 461 | 38 | 226.5 | 239.5 | 300 | 431 | 120 | 1003 | 505 | 343 |
| 3041449 | 973 | 341.5 | 461 | 38 | 226.5 | 239.5 | 300 | 431 | 120 | 1003 | 505 | 343 |
| 3041457 | 1313 | 341.5 | 461 | 38 | 226.5 | 239.5 | 300 | 431 | 120 | 1343 | 505 | 343 |
| 3041458 | 1313 | 341.5 | 461 | 38 | 226.5 | 239.5 | 300 | 431 | 120 | 1343 | 505 | 343 |
| 3041459 | 1313 | 341.5 | 461 | 38 | 226.5 | 239.5 | 300 | 431 | 120 | 1343 | 505 | 343 |
| 3041460 | 1313 | 341.5 | 461 | 38 | 226.5 | 239.5 | 300 | 431 | 120 | 1343 | 505 | 343 |
| 3041461 | 1313 | 341.5 | 461 | 38 | 226.5 | 239.5 | 300 | 431 | 120 | 1343 | 505 | 343 |
| 3041462 | 1313 | 341.5 | 461 | 38 | 226.5 | 239.5 | 300 | 431 | 120 | 1343 | 505 | 343 |
